Design Case Study: Transforming the Kitchen and Three Bathrooms for a Home Chef and Modern Living

Gold People Choice Award BadgeSilver People Choice Award BadgeBronze People Choice Award Badge

Before After
No items found.

Project Overview

The homeowners, both passionate about cooking and modern design, sought to transform their kitchen and three bathrooms to enhance functionality, efficiency, and aesthetics. The kitchen, in particular, needed significant improvements to support the home chef's needs, while the bathrooms required a refresh to align with the rest of the home's modern, European-inspired style. The team at Refresh Renovations was tasked with creating a comprehensive design that would meet the homeowners' long-term living goals and improve the overall property value.

Design Objectives

  1. Kitchen Functionality and Efficiency: Make the kitchen more functional and efficient for the home chef.
  2. Improved Kitchen Lighting: Enhance lighting, especially in the pantry, and explore LED cabinet lighting.
  3. Bathroom Refresh: Modernize and refresh the three bathrooms.
  4. Long-Term Living: Design spaces that will serve the homeowners well for the next 20 years.
  5. Additional Windows: Increase natural light and ventilation.
  6. Island Option: Explore a chef-style kitchen island with a beverage station, while addressing seating and sink placement issues.

Design Implementation

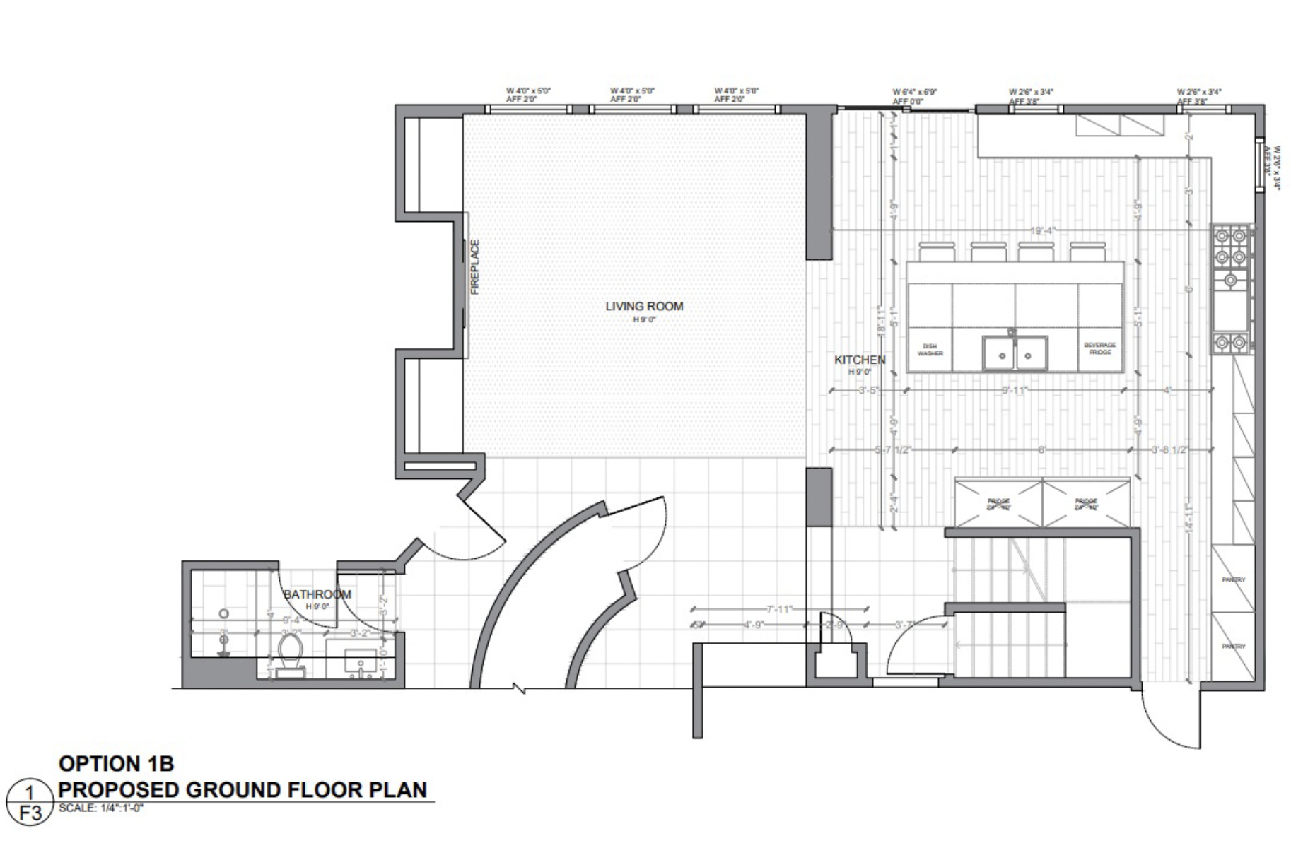
Kitchen Remodel
  • Layout Redesign:
    • The kitchen layout to be reconfigured to create more open space and better flow. The refrigerator and dishwasher were moved to more accessible locations, ensuring that the doors could be opened without obstructing movement.
    • A chef-style island to be added, providing additional counter space, storage, and a built-in beverage station. The island also includes a seating area, which was designed to be unobtrusive and not interfere with the cooking process.
    • The sink was moved closer to the refrigerator to improve the workflow and make it easier to prepare meals.
  • Lighting Enhancements:
    • New, modern LED lighting fixtures to be installed throughout the kitchen, including under-cabinet and overhead lights.
    • The pantry to be equipped with LED strip lighting to ensure that all items are easily visible.
    • LED cabinet lighting was explored and to be implemented, adding a touch of sophistication and practicality.
  • Additional Windows:
    • Two new windows to be added to the kitchen to increase natural light and ventilation. The windows were strategically placed to enhance the overall ambiance and provide a pleasant view while cooking.
Bathroom 1: Master Bathroom
  • Modernization:
    • The master bathroom to be refreshed with a modern, European-inspired design. The walls were painted in a soft, neutral color, and the tiles were updated to a sleek, contemporary style.
    • New, oil-rubbed bronze fixtures to be installed, including a modern, frameless glass shower enclosure with dual shower heads and easy access valves.
  • Storage and Organization:
    • A custom-built vanity with ample drawer space to be installed to keep the countertops clutter-free.
  • Heated Tiles:
    • Heated tiles to be installed throughout the bathroom, including the shower area, for added comfort.
  • Lighting:
    • New, modern LED lighting fixtures to be installed, including recessed lights and a sleek, oil-rubbed bronze ceiling fan.
Bathroom 2: Guest Bathroom
  • Modernization:
    • The guest bathroom was refreshed with a modern, European-inspired design. The walls were painted in a soft, neutral color, and the tiles to be updated to a sleek, contemporary style.
    • A new, frameless glass shower enclosure with a rainfall showerhead and oil-rubbed bronze fixtures to be installed.
  • Storage and Organization:
    • A custom-built vanity with ample drawer space to be installed to keep the countertops clutter-free.
    • A new medicine cabinet with mirrored doors and internal storage to be added.
  • Lighting:
    • New, modern LED lighting fixtures to be installed, including recessed lights and a sleek, oil-rubbed bronze ceiling fan.
Bathroom 3: Powder Room
  • Modernization:
    • The powder room was refreshed with a modern, European-inspired design. The walls to be painted in a soft, neutral color, and the tiles were updated to a sleek, contemporary style.
    • A new, modern sink and vanity to be installed, featuring oil-rubbed bronze fixtures.
  • Storage and Organization:
    • A small, custom-built storage cabinet to be added to keep essential items organized and out of sight.
  • Lighting:
    • New, modern LED lighting fixtures to be installed, including a wall-mounted sconce and a sleek, oil-rubbed bronze ceiling fan.

Conclusion

The comprehensive renovation design of the kitchen and three bathrooms by Refresh Renovations has successfully achieved the homeowners' vision of a functional, efficient, and modern living space. The design elements and practical features have created a serene and inviting environment that aligns with their lifestyle and long-term living goals. 

No items found.
This project was completed in
November 2024
.
Project description
Location
Broomfield
United States
Client
Project duration
Cost estimate
Actual cost
Challenges
Interesting aspects
Share to

Chris Carter is a Remodeling Consultant of McGraw Hardware and Building Supply Company, a franchisee of Renovation Franchise Ltd, doing business in Boulder.

Actual costs vary by project. Plan ahead to reduce the impact of industry changes or disruptions. For more information see here.

Related Projects

No items found.

Talk to a renovation consultant today

If you would like to find out how Refresh Renovations can support you with a high quality, efficient home renovation, get in touch today. Your local Refresh Renovations consultant will be happy to meet with you for a free, no obligations consultation.

Get in touch
No items found.